方案展示






設計說明
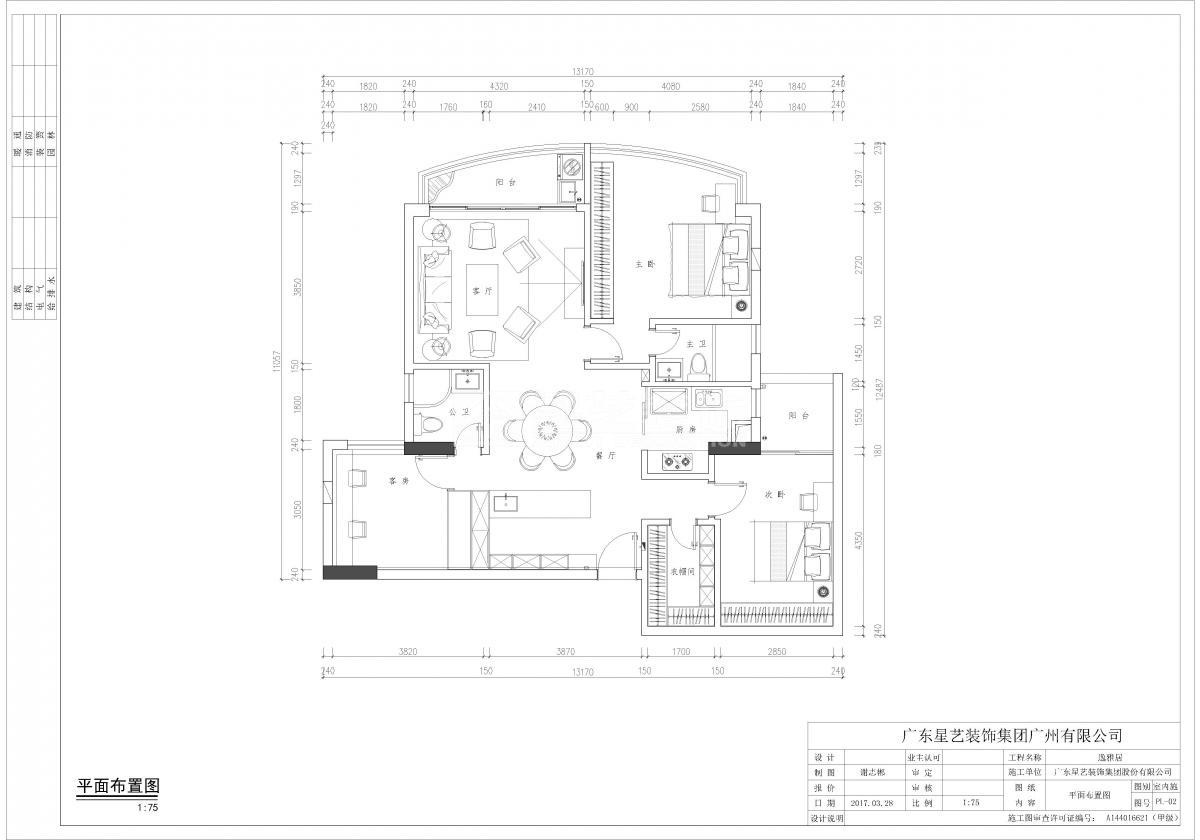
本案是舊房翻新,首先房子有一個比較明顯的缺點,餐廳過小而且不透光,比較暗。這個方案比較大膽的把原主人房改成客廳,這樣可以打開原主臥的墻,光線就可以透到餐廳去。把衣帽間的空間也歸到餐廳,這樣餐廳變的很大很明亮。
[展開]-
星藝設計師的其它設計案例
-
簡歐風格的其它設計案例
廣東星藝裝飾集團廣州有限公司,一起尋找好裝修!
本案是舊房翻新,首先房子有一個比較明顯的缺點,餐廳過小而且不透光,比較暗。這個方案比較大膽的把原主人房改成客廳,這樣可以打開原主臥的墻,光線就可以透到餐廳去。把衣帽間的空間也歸到餐廳,這樣餐廳變的很大很明亮。
[展開](c)Copyright 2021 廣東星藝裝飾集團有限公司廣州分公司 版權所有 粵ICP備12080332號 公安部備案號 44010602004978號