方案展示











設計說明
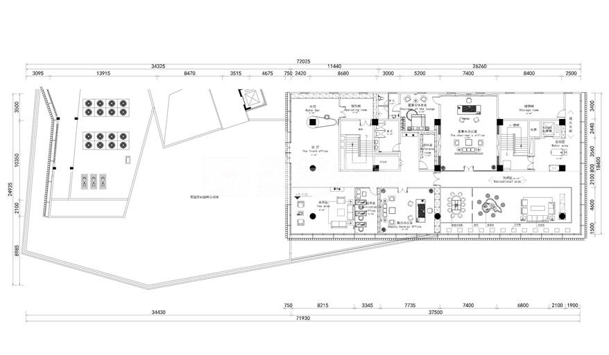
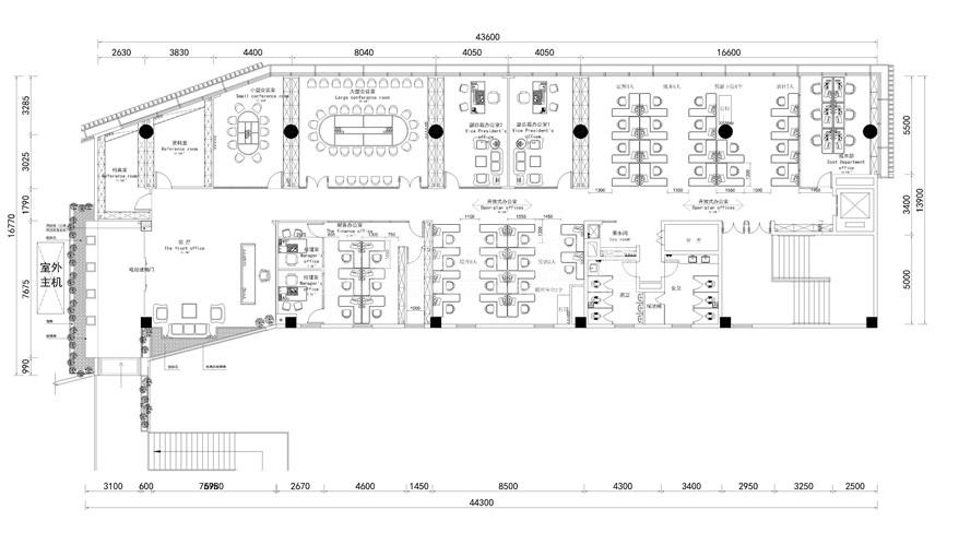
國豐源集團是一家上市公司,現代簡潔的辦公風格,OFFICE總面積1500平方,按照甲方設計要求分區明確,企業文化體現明顯,實用性更強。
[展開]-
星藝設計師的其它設計案例
-
現代風格的其它設計案例
廣東星藝裝飾集團廣州有限公司,一起尋找好裝修!
國豐源集團是一家上市公司,現代簡潔的辦公風格,OFFICE總面積1500平方,按照甲方設計要求分區明確,企業文化體現明顯,實用性更強。
[展開](c)Copyright 2021 廣東星藝裝飾集團有限公司廣州分公司 版權所有 粵ICP備12080332號 公安部備案號 44010602004978號